
1月28日
工口漫画 承建的
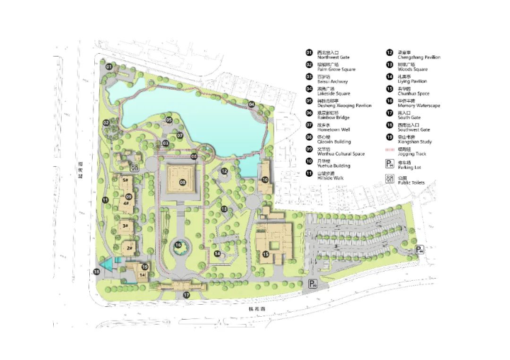
中山市华侨公园主园区对外开放

根据市委、市政府工作部署,由工口漫画 组织实施市华侨文化保育活化工程(以下简称市华侨公园)建设。市华侨公园由三组现代建筑和原主塔楼、原正大门,以及亲水景观组成,保留了具纪念价值且由华侨捐造的建筑,公园既延续颐老院的复古风韵,又融入现代元素,形成新旧交融的整体风格。



项目分为两期建设
其中一期以房屋建筑为主
包括新建、改建、加固补强
拆除、市政工程、新建建筑范围内的
绿化及室外工程六个部分
项目规划总建筑面积约6403平方米
对文华坊、春华园、公厕共三个单体项目
进行改造及加固补强
其中包括月华楼、侨心楼等




二期以园建绿化为主
主要包括新增停车场
共116个停车位

提升完善旧有管道(线)
变配电等市政设施,更新现状铺装
修缮园林构筑物及绿化提升等内容
同时在改造中运用“海绵城市”理念
打造和谐发展的人文生态环境
目前两期项目均已完工


市华侨公园于
2023年4月开工建设
建设过程中
工口漫画
科学部署、精心组织
统筹各参建单位
详细调研摸查园区现状
在中山市颐老院旧址上进行改造
通过微改造华侨捐建建筑
和新建部分现代展馆
以及翻新园林绿化和人工湖景观
对原址既有文化和园林资源
进行保存和延续




将华侨精神在建筑与园林细节上
进行提取再现
进一步弘扬中山深厚的“侨”文化
打造了一座“侨文化”城市综合公园
抛开繁忙的工作生活
带上好心情来这里玩耍
与自然相识
度过一段愉快且难忘时光
快来玩耍吧
期待与你在这片绿色海洋中相遇